info@soonarchitectes.be

Contactez-nous

M

Adresse

Bd Albert-Elisabeth 55, 
7000 Mons, Belgique

Vous avez un projet en tête ?

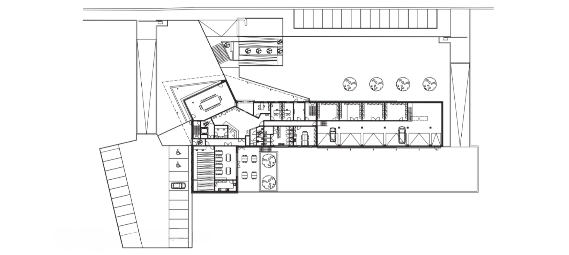
Habillage de dentelle pour le siège social de l’ISSH

Le projet est né de la volonté du maître de l’ouvrage de quitter le centre-ville deBinche pour implanter ses bureaux en entrée de ville. Quitter une infrastructuredésuète et obsolète au profit d’un nouveau bâtiment performant. Ainsi le bâtimentse trouve sur l’une des voies de pénétrations vers Binche, sur une parcellesurplombant le domaine public. Son implantation confère à l’Immobilière Socialeentre Sambre et Haine une grande visibilité. Une double peau offre au bâtimentune symbolique toute particulière en rendant hommage aux dentelliers etdentellières binchois(es).

La position en entrée de ville a fortement orienté l’implantationde l’édifice. Celui-ci est composé de deux ailes perpendiculaires. L’aile la plus longue est alignée par rapport à la voirieet l’angle sortant est dirigé vers la sortie de ville. Sur la pointede l’angle est inséré un volume en saillie qui casse la rigueurde l’ensemble.Le bâtiment comporte deux niveaux hors sol. Le rez-de-chaussée est subdivisé en quatre grandes zones: l’accueil des  visiteurs, la  salle de conseil d’administration, des  services dédiés au personnel et la régie technique. Le premier niveau estpartiellement décaissé pour permettre à la régie technique debénéficier d’une hauteur sous-plafond adaptée. La  salle duconseil d’administration est positionnée comme un  diamant.Elle oriente le  visiteur vers l’entrée principale. L’étage comprend l’ensemble des bureaux du personnel. La plus petite aileest dédiée aux services de direction tandis que la plus grandeest occupée par les employés.

Une distribution centrale dessert l’ensemble de l’étage.L’emploi de cloisons vitrées gomme l’effet tunnel des  deuxzones de circulation. Escalier et ascenseur sont stratégiquement positionnés à l’intersection de celles-ci.Le surplus de toiture du rez-de-chaussée est végétalisé.Une partie est aménagée en terrasse dédiée aux employés.Les contraintes de délai ont orienté l’exécution vers un  système constructif d’éléments préfabriqués essentiellementutilisé dans le  secteur industriel. La  technique des  prémursisolés en béton a permis d’ériger rapidement la  structure. Àl’intérieur comme à l’extérieur, le  béton est laissé apparent.Toutefois, l’image industrielle est cassée par la mise en placed’un élément architecturé qui redonne au bâtiment une plastique mieux en accord avec sa fonction tertiaire. Dès le départ,la  conception s’est inspirée de l’histoire de la  ville d’accueilpour imaginer le nouveau siège. Si Binche est connu au-delà